
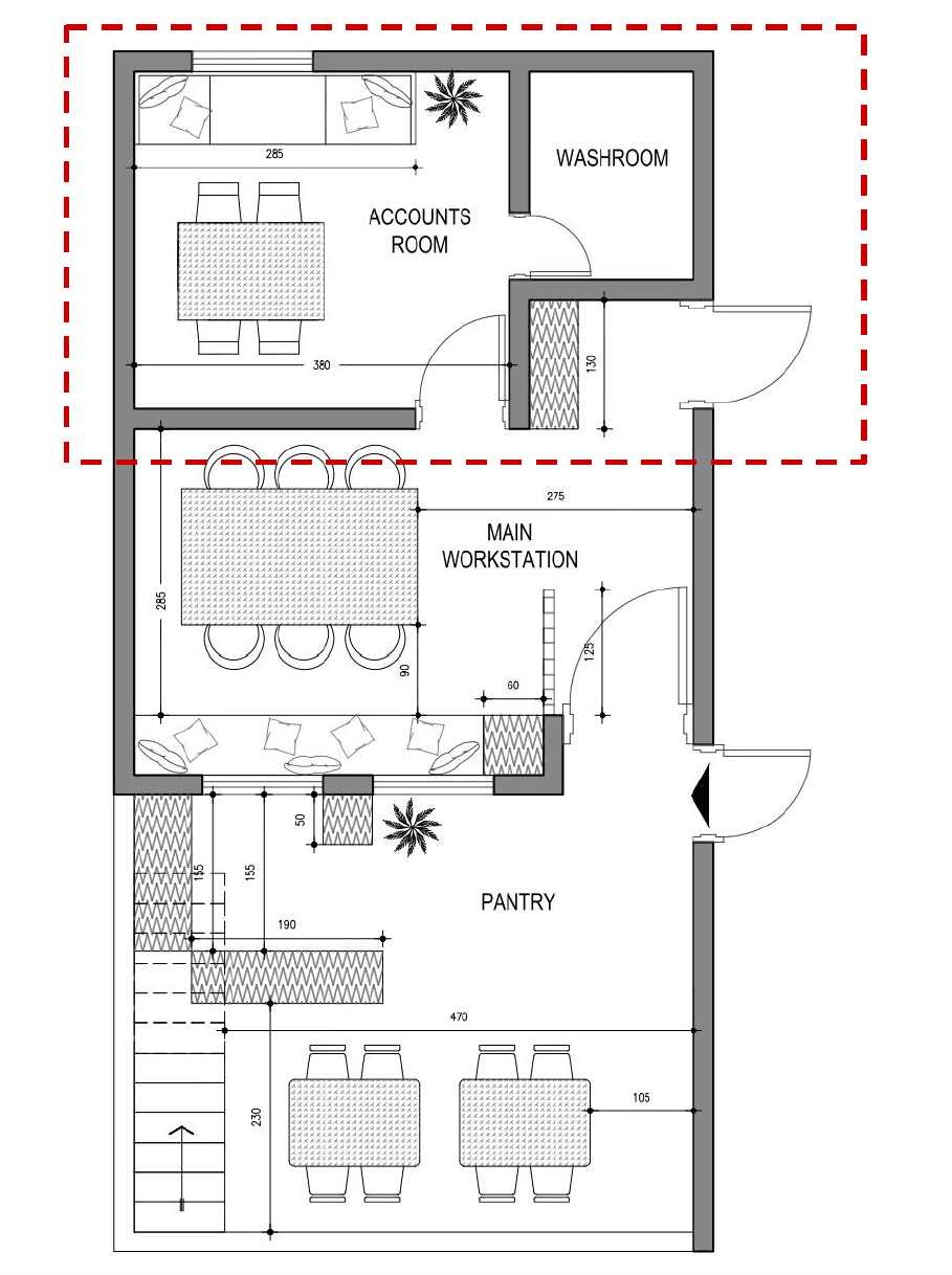
Jayanagar FMCG Office
Commercial office interior for an FMCG business, focused on creating a fresh and functional workspace. The design emphasises efficient space utilisation to accommodate a growing team, along with practical layouts and cost-effective solutions.
Location
Jayanagar, Bangalore
Category
Commercial
Year
2025
Unlike traditional offices with fixed layouts, Modular Office Space is structured around movable partitions, retractable walls, and multi-functional pods that can be easily reconfigured. Whether accommodating large teams, focused work, or social interactions, the space shifts seamlessly to support different work modes. This flexibility ensures that businesses can optimize space usage while adapting to evolving organizational needs and work styles.




Sustainability is embedded in every aspect of the design, from energy-efficient lighting and climate-responsive ventilation systems to modular furniture made from recycled materials. Smart office technology—including sensor-based lighting, AI-driven climate control, and real-time occupancy tracking—optimizes energy use while creating a highly responsive workplace. These features not only reduce environmental impact but also enhance comfort and efficiency.


